Listed by Real Broker (207-314-8443)
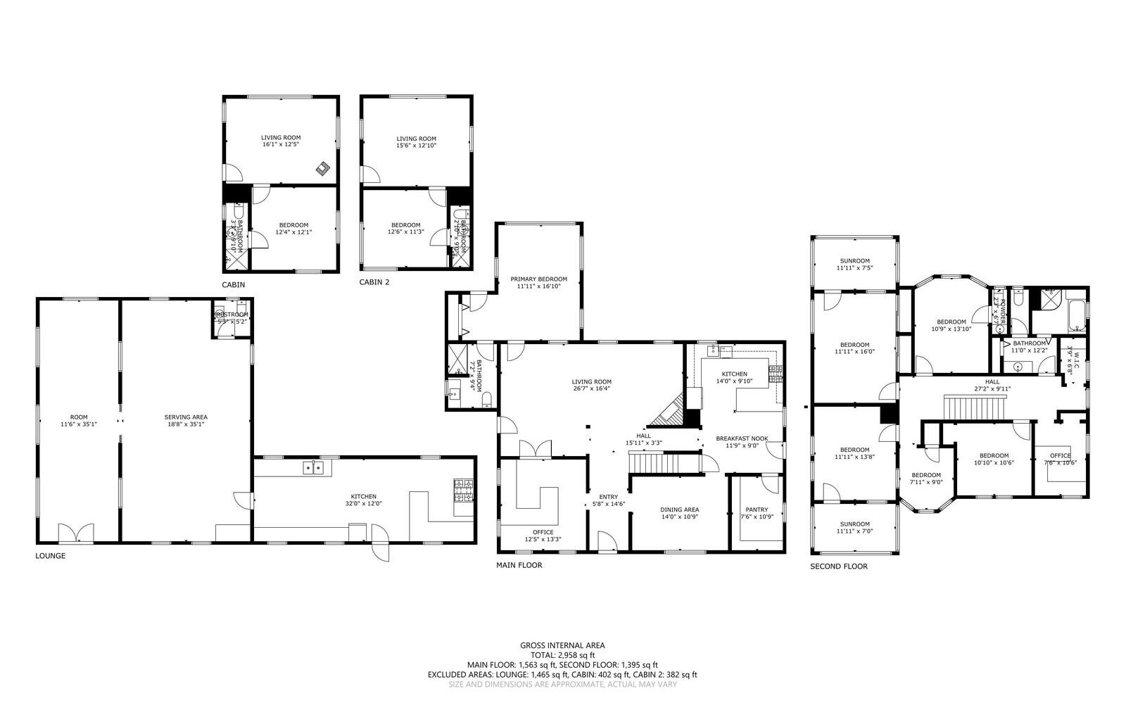
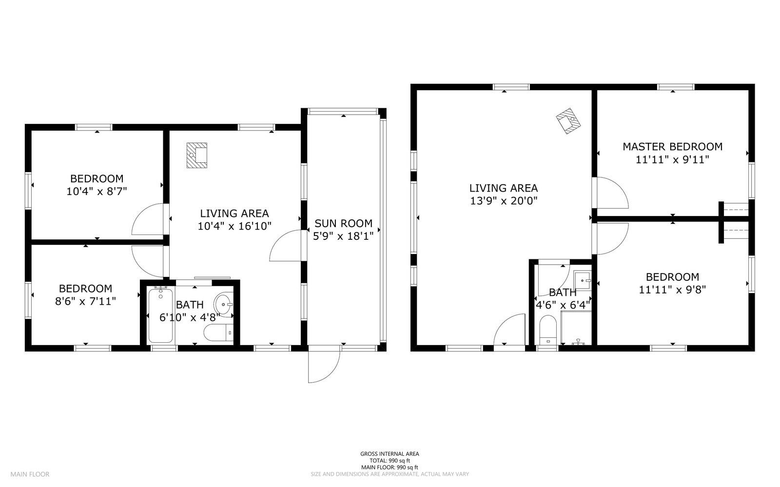
Whether you're searching for a spacious family compound, a private retreat for making lifelong memories, or a lakeside property where the possibilities are endless, this rare one of a kind estate on Salmon Lake could be just what you've been dreaming of. Nestled on 6 peaceful acres with 531 feet of private water frontage, this property offers everything you need for lakeside living. The centerpiece is a stunning 7 bedroom, 3 bathroom main house, beautifully blending modern updates with the timeless charm of a classic Maine camp. Just a short walk from the main house, you'll find a welcoming lodge complete with a commercial kitchen, large dining room perfect for family gatherings, holiday feasts, or hosting special events. Near the water's edge, 11 cozy cottages provide extra space for guests, extended family, or friends to join you on the lake. Six cottages feature two bedrooms and a full bathroom, while the remaining five offer a one bedroom, one bathroom layout. Each has its own unique character and charm, creating a lakeside village feel where everyone can enjoy their own space and privacy. This breathtaking setting on Salmon Lake is perfect for swimming, boating, kayaking, and canoeing. The level waterfront makes it easy to launch a boat or cast a line into the famous waters, known for excellent largemouth and smallmouth bass fishing. Spend your days grilling by the lake, enjoying picnics, playing horseshoes, or relaxing by a bonfire under the stars. The location is unbeatable! Just minutes from incredible hiking trails, scenic golf courses, and the natural beauty of the Belgrade Lakes. Just 15 minutes to Waterville, 20 minutes to Augusta, and a little over an hour to Portland. This property is a true Maine gem, a place where families can gather, unwind, and create memories for generations to come. Whether you're seeking a peaceful year round residence or a family vacation haven, this special property offers it all! NO PULL INS.APT REQUIRED

Listing Tools (detailViewNewGen)

Property Details of 103 Taylor Woods Road

Property Details

Interior Features

Exterior Features

Community

Map Location

Listing data is derived in whole or in part from the Maine IDX & is for consumers' personal, non commercial use only. Dimensions are approximate and not guaranteed. All data should be independently verified. ©2025 Maine Real Estate Information System, Inc. All Rights Reserved. equal opportunity housing logo   Privacy Policy

Gallant Real Estate participates in ©2025 Maine Listings Internet Data Exchange program, allowing us to display other Maine IDX Participants' listings. This website does not display complete listings. Certain listings of other real estate brokerage firms have been excluded. Mortgage figures are estimates. Check with your bank or proposed mortgage company for actual interest rates. This product uses the FRED® API but is not endorsed or certified by the Federal Reserve Bank of St. Louis.

Hi there! How can we help you?

Contact us using the form below or give us a call.

Send Us A Message:

I agree to receive marketing and customer service calls and text messages from Gallant Real Estate. To opt out, you can reply 'stop' at any time or click the unsubscribe link in the emails. Consent is not a condition of purchase. Msg/data rates may apply. Msg frequency varies. Privacy Policy.

Do not fill in this field:

This site is protected by reCAPTCHA and the Google Privacy Policy and Terms of Service apply.

Hi there! How can we help you?

Contact us using the form below or give us a call.

Send Us A Message:

Do not fill in this field:

This site is protected by reCAPTCHA and the Google Privacy Policy and Terms of Service apply.

Hi there! How can we help you?

Contact us using the form below or give us a call.

Send Us A Message:

Do not fill in this field:

This site is protected by reCAPTCHA and the Google Privacy Policy and Terms of Service apply.

Do not fill in this field:

This site is protected by reCAPTCHA and the Google Privacy Policy and Terms of Service apply.

Do not fill in this field:

This site is protected by reCAPTCHA and the Google Privacy Policy and Terms of Service apply.

Do not fill in this field:

This site is protected by reCAPTCHA and the Google Privacy Policy and Terms of Service apply.

$

Do not fill in this field:

This site is protected by reCAPTCHA and the Google Privacy Policy and Terms of Service apply.